Beschreibung
Entdecken Sie das charmante, an einer Privatstraße gelegene und etwa 130 m² große Einfamilienhaus mit einem etwa 1.063 m² großen Grundstück. Diese renovierungsbedürftige Immobilie bietet Ihnen eine einmalige Gelegenheit, Ihr Traumhaus ganz nach Ihren Vorstellungen zu gestalten. Mit viel Potenzial und zahlreichen Möglichkeiten ist dieses Haus perfekt für kreative Köpfe und handwerklich Begabte. Das Haus verfügt über drei Schlafzimmer, ein geräumiges Wohnzimmer inklusive des Essbereichs, eine Küche, ein Badezimmer und ein zusätzliches Gäste-WC. Der Keller bietet zusätzlichen Stauraum oder die Möglichkeit, einen Hobby-/Partyraum oder eine Werkstatt einzurichten. Die im Keller befindliche Sauna verleiht Ihrem Alltag die ultimative Entspannung. Die großzügige Raumaufteilung und die solide Bausubstanz bieten eine hervorragende Grundlage für Ihre Renovierungspläne. Der wahre Schatz dieser Immobilie ist jedoch der riesige Garten. Stellen Sie sich vor, wie Sie in Ihrem eigenen grünen Paradies entspannen, Gartenpartys veranstalten oder einen Spielbereich für die Kinder einrichten. Der Garten bietet unendliche Möglichkeiten für Gartenliebhaber, Hobbygärtner oder einfach nur für diejenigen, die viel Platz im Freien genießen möchten.
Ausstattung
• Freistehendes Einfamilienhaus mit vier Zimmern, Küche, Bad und Gäste-WC • 130,45 m² Wohnfläche mit durchdachtem Grundriss und viel Potenzial • 1.063 m² großes Grundstück • Vollkeller mit Partyraum und Sauna • Privatstraße und externe Garage • Nebengebäude
Details
Einfamilienhaus
Objekttyp
Wohnfläche
1979
Baujahr
4
Zimmer
1
Badezimmer
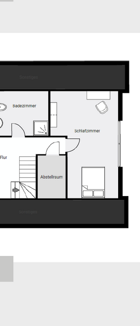
Grundriss

Energieausweis
.png)
Lage
Willkommen in Bleckenstedt, einem Stadtteil von Salzgitter mit etwa 600 Einwohnern. Die Objektlage dieser gemütlichen Immobilie bietet Ihnen die perfekte Kombination aus ländlicher Ruhe und städtischer Nähe, perfekt für Familien oder Paare, die das Beste aus beiden Welten suchen.
Die Lage in Bleckenstedt ist einfach ideal. Genießen Sie die Ruhe und den Charme eines kleinen Dorfes, während Sie gleichzeitig von der Nähe zu Salzgitter profitieren. In den umliegenden Ortschaften finden Sie zahlreiche Annehmlichkeiten wie Supermärkte, Schulen und Restaurants. Die nächste Grundschule ist etwa 4 Kilometer entfernt. Weiterführende Schulen und Kindergärten befinden sich im benachbarten Salzgitter-Lebenstedt. Für Ihre Freizeitgestaltung bietet der nahegelegene Salzgittersee zahlreiche Möglichkeiten für Outdoor-Aktivitäten wie Wandern, Radfahren und Bootfahren.
Die Verkehrsanbindung ist hervorragend, sodass Sie schnell und bequem in die Innenstadt von Salzgitter gelangen. Auch die Autobahn A39 ist innerhalb von nur 4 Autominuten erreichbar, was Ihnen eine schnelle Verbindung zu den umliegenden Städten und Regionen ermöglicht. So erreichen Sie beispielsweise Braunschweig innerhalb von 22 Autominuten, Wolfsburg innerhalb von 40 Autominuten und Hannover in circa einer Stunde Fahrtzeit.
Karte
Schwerdtfegerstraße 12A, Salzgitter, Deutschland
Sonstiges
Der Makler-Vertrag kommt durch die Bestätigung der Inanspruchnahme der Maklertätigkeit in Textform (z.B. E-Mail mit Bestätigung der gewollten Inanspruchnahme) zustande. Die Höhe der Provision beträgt regelmäßig gem. § 656c BGB für beide Parteien (Eigentümer und Käufer) jeweils 3,00% zuzüglich Umsatzsteuer in jeweils geltender Höhe, derzeit also insgesamt 3,57 % des Kaufpreises einschließlich gesetzlicher Umsatzsteuer. Diese ist verdient und fällig mit Beurkundung des notariellen Kaufvertrages. Die Höhe der Bruttoprovision unterliegt einer Anpassung bei Steuersatzänderung.
Der Energieausweis liegt vor und kann zur Besichtigung eingesehen oder vorab zugesendet werden.
Sie möchten das vollständige Exposé erhalten?
Bitte senden Sie mir Ihre Anfrage über das Kontaktformular oder direkt per E-Mail an kontakt@stahlhut-immobilien.de. Vielen Dank! Sie möchten Ihre Immobilie verkaufen? Gerne helfe ich Ihnen dabei den richtigen Käufer zu finden. Ich freue mich auf Ihren Anruf! Kontakt Sandra Stahlhut +49 172 20 50 491 kontakt@stahlhut-immobilien.de Grundrisse sind nicht maßstabsgerecht. Alle Angaben sind ohne Gewähr und basieren auf den Informationen, die uns unser Auftraggeber zur Verfügung gestellt hat. Für die Vollständigkeit und Richtigkeit wird keine Gewähr übernommen. Zwischenverkauf bleibt vorbehalten.
Die Weitergabe des Exposés an Dritte löst gegebenenfalls Provision- oder Schadensersatzansprüche aus.
































